Bedrooms:
4
Bathrooms:
3
Square Feet:
1,890 sqft
Under Contract
Virtual Tour of 2513 Banbury Lane , Fort Collins 80524
Property Description
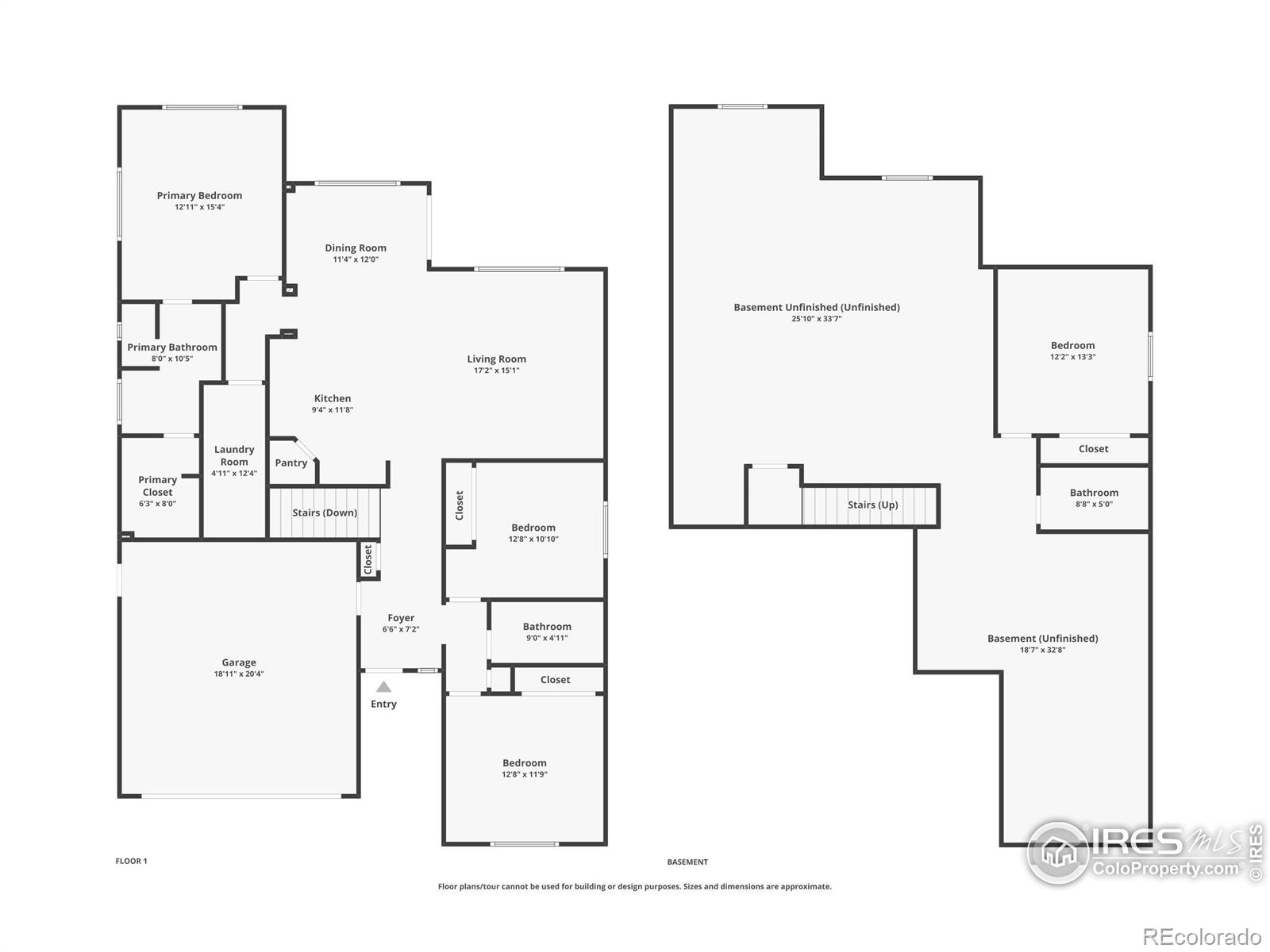
NEW PAINT throughout and NEW CARPET!! This ranch home in the Maple Hill community shines with recent improvements, including fresh exterior paint that gives it instant curb appeal. Thoughtfully designed and move-in ready, it offers comfort, style, and room to grow. Step into the main living area, where updated LVP flooring, soaring ceilings, and large windows fill the space with natural light. The open layout makes it easy to relax, entertain, or simply enjoy the flow of daily living. The kitchen features updated stainless steel appliances including a unique oven that converts between single and double use, plenty of prep space, a breakfast bar, and a pantry. The split-bedroom design keeps the primary suite set apart from the other two bedrooms, creating a private retreat complete with an ensuite bathroom and a walk-in closet. The full basement offers endless possibilities for expansion, with a finished bedroom and bathroom already in place. Out back, a fully fenced and landscaped yard offers garden beds for green thumbs, while the covered patio provides the perfect shady spot to relax or gather outdoors. Just around the corner, enjoy the gated pool and Crescent Park, along with acres of natural areas and scenic trails just nearby. Perfectly placed just minutes from Fort Collins Country Club, the Budweiser Brewery, and only 5 miles from Old Town. Plus, quick access to I-25 keeps you connected to everything beyond. Additional improvements include a new exterior home surge protector and updated bathroom fixtures and faucets.
General Information
Price:
$525,000
Status:
Active Under Contract
Close Date
Square Feet:
1,890
Structure Style:
House
Bedrooms:
4
Bathrooms:
3
Garage Spaces:
2.00
Basement Type:
Full
Year Built:
2013
Neighborhood:
Maple Hill
City:
Fort Collins
Zip:
80524
County:
Larimer
HOA Y/N:
Yes
HOA Fee:
$60
HOA Paid Frequency:
Monthly
Taxes:
$3,175
Property Type:
Single Family Residence
Tax Year:
2024
MLS ID:
IR1048334
Listing Attribution:
Kittle Real Estate
Property Features
Interior Features:
Eat-in Kitchen, Open Floorplan, Pantry, Walk-In Closet(s)
Exterior Features:
Kitchen Features:
Dishwasher, Disposal, Double Oven, Dryer, Freezer, Oven, Refrigerator, Washer
Flooring:
Laundry:
In Unit
Fireplace Features:
Cooling:
Central Air
Heating:
Forced Air
Utilities:
Electricity Available, Natural Gas Available
Construction Finish:
Brick, Concrete, Frame, Wood Siding
Roofing:
Composition
Water:
Public
School Information
School District:
Poudre R-1
High School:
Poudre
Middle School:
Lincoln
Elementary School:
Tavelli
Community Information
Neighborhood:
Maple Hill
Lot Information
Lot Size (sq feet):
4,950
Lot Features:
Sprinklers In Front
Location Information
Directions:












































