Bedrooms:
2
Bathrooms:
3
Square Feet:
1,658 sqft
Pending
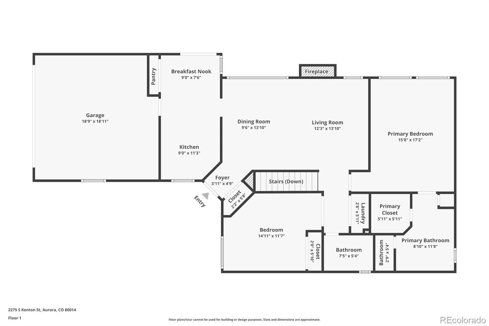
Virtual Tour of 2275 S Kenton Street , Aurora 80014
Property Description
As you step inside, you'll be wowed immediately. This home offers a spacious open floor plan designed with convenience to fit your lifestyle!
Abundant natural light beams throughout the inviting interior and is accented with vaulted ceilings throughout, neutral paint and a fireplace in the main floor living area. Get ready to entertain with the side yard and large deck conveniently located off the kitchen- perfect for enjoying the Colorado weather all year long! The kitchen features stainless-steel finished appliances with easy access to the 2-car garage. The primary suite includes a large bedroom with a beautiful finished primary en suite that includes a shower, large separate tub, vanity, water closet and well-organized walk-in closets. The partially finished basement offers radon mitigation system, a large bonus room and a 3/4 bath with plenty of space for you to make your own and add more livable square footage for future appreciation. Radon mitigation system installed in 2019 and, freshly painted deck. Enjoy your evening walks in the quite neighborhood parks nearby. Convenient to Anschutz Medical Campus, DTC, DIA and Downtown and minutes away from shopping and dining with quick access to I-225.
General Information
Price:
$499,900
Status:
Pending
Close Date
Square Feet:
1,658
Structure Style:
House
Bedrooms:
2
Bathrooms:
3
Garage Spaces:
2.00
Basement Type:
Crawl Space, Finished, Partial
Year Built:
1993
Neighborhood:
Fountain Side
City:
Aurora
Zip:
80014
County:
Arapahoe
HOA Y/N:
Yes
HOA Fee:
$140
HOA Paid Frequency:
Monthly
Taxes:
$2,503
Property Type:
Single Family Residence
Tax Year:
2024
MLS ID:
8246829
Listing Attribution:
Resident Realty Colorado lgarcia@residentrealty.com,720-339-4272
Property Features
Interior Features:
Ceiling Fan(s), Eat-in Kitchen, Entrance Foyer, Laminate Counters, Open Floorplan, Smoke Free, Vaulted Ceiling(s), Walk-In Closet(s)
Exterior Features:
Rain Gutters
Kitchen Features:
Dishwasher, Disposal, Dryer, Gas Water Heater, Microwave, Range, Washer
Flooring:
Carpet, Laminate, Vinyl
Laundry:
Fireplace Features:
Living Room
Cooling:
Central Air
Heating:
Forced Air
Utilities:
Construction Finish:
Vinyl Siding
Roofing:
Shingle
Water:
Public
School Information
School District:
Cherry Creek 5
High School:
Overland
Middle School:
Prairie
Elementary School:
Ponderosa
Community Information
Neighborhood:
Fountain Side
Lot Information
Lot Size (sq feet):
4,051
Lot Features:
Landscaped, Master Planned, Near Public Transit, Sprinklers In Front, Sprinklers In Rear
Location Information
Directions:





































